Képeken mutatjuk, hogyan védik meg a teljes összeomlástól a bentlakás épületét
Betonnal vagy kővel tömik be a sáncot? Melyik épületszárnyat kell megerősíteni és hogy?
Értesüléseink szerint hétfőn fog neki Kvadrum Axis Kft., hogy elvégezze a baleset utáni sürgősségi munkálatokat, amelyek megőrzik a Gimi bentlakását a további károsodástól. A székelyudvarhelyi Kvadrum Axis Kft. tulajdonosa Nagy Zsolt, a vállalkozás több erdélyi műemléképület felújításában vett részt, többek közt a Tamási Áron Gimnázium főépületének renoválásánál voltak fővállalkozók, de információink szerint a Jézus szíve kápolna és a kolozsvári evangélikus-lutheránus templom felújításánál is kivitelezők voltak.
A székelyudvarhelyi polgármesteri hivataltól kikértem az építési engedélyt, egy percen belül küldték. Az engedélynek része egy szakvélemény, Pálfi Előd marosvásárhelyi szakember munkája, ebben vannak leírva a sürgősen elvégzendő munkálatok, amelyek a kiásott sánc betömését, a megmaradt falak megerősítését, a levájt domboldal kitámasztását tartalmazzák.
Frissítés hétfő délelőtt: a helyszínen járva tapasztaltuk, hogy a munkálatokat elkezdték, épp a betont pumpálták a sáncba. Nagy Zsolt cégvezető elmondta, a sáncot minél hamarabb betömik, de a többi munkálat időigényes, körül-belül 4-6 hétbe fog telni a sok alátámasztást-merevítést megépíteni. És vannak még a tervnek kérdéses részei, ahol a részleteket még tisztázni kell, a terep adottságainak függvényében.
Ebben a cikkben ezeket a munkálatokat fogjuk a szakvélemény alapján egyenként megnézni. A műszaki rajzzal kevésbé boldoguló olvasóink számára megmutatjuk, melyik épület mely részén milyen munkálatokat végeznek el, hogy ne omoljon tovább az épület.
Íme az épület felülnézetből:

A fenti képen sárgával jelölt C1B épületszárny jobb alsó felén szakadt le az épület, a C1A szárny szomszédságában. Pirossal megjelölöm a kritikus részt.

Íme, egy helyszíni fotón hogy kell elképzelni a két szárnyat:

A bejárati épület, aminek pincéje is van, tehát mélyebb alapokon nyugszik, az a C1A, míg a hozzáépített, kevésbé mély alapon álló, megomlott szárny a C1B.
Mit ír elő a szakember a két szárnyra:
1. A sánc első felébe kézzel döngölik a követ
A bejárati épületet nem érintette a baleset, csak a leomlott szárnnyal való találkozásnál kell merevíteni, és be kell tömni a mellé ásott sáncot.

Első fázisban kaviccsal és tört kővel tömik be a meglévő sáncot a C1A pincehelyiségének oldalfalánál.

Ezt kézi döngölővel tömörítik.

A második fázisban megemelik a talaj szintjét 80 centiméterrel. Azaz visszarakják a földet, amit a baleset előtt eltávolítottak.
2. A sánc végét betonozzák
A leomlott C1B szárny melletti sánc esetében, ahol nincs pince, s így jócskán az alap alá ástak, másképp kell eljárni.

Itt első fázisban betonnal töltik meg a sáncot.

Nem tömörítenek semmit, a betont finoman vibrálják. A betont az utcáról pumpálják, de nem a beszakadás fölötti útról, hanem az afölöttiről.

Második fázisban 60 centivel megemelik a talaj szintjét, kézi döngölővel tömörítve.
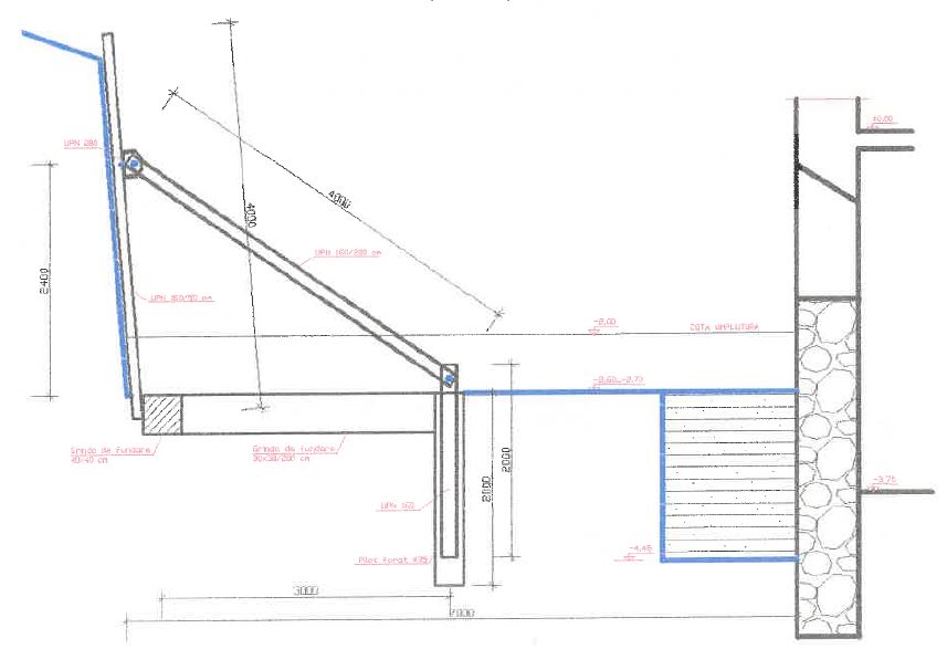
3. A domboldalt megtámasztják
Az épület mellett hosszan levájtak a domboldalból.

Itt UPN 160 fém profilokkal megtámasztják a levájt oldalt.

Hogy ne suvadjon be a bentlakásra a fenti macskaköves út, vagy a Gimi nagy épülete.
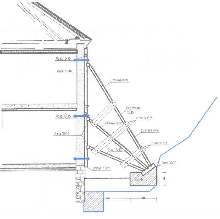
4. A be nem omlott oldalfalat megtámasztják
A C1B szárny egy részén a fal beomlott, a másikon nem. A be nem omlott oldalfalnál kitámasztást írnak elő.

A falhoz rögzített lapokat kintről egy ilyen merevítőszerkezet segítségével támasztják ki:

Öt párhuzamos síkban szerelnek ilyen merevítőket, és ezeket egymáshoz is kimerevítik.

5. Kitámasztják a födémeket a beszakadt rész körül
A födémeket (a helyiségek mennyezetét) is kitámasztják.

A leszakadt rész körül mindkét szinten, és az alsó szinten a C1B szárny teljes felületén.

Így fog kinézni az alátámasztás a folyosókon:

És így a szobákban:

6. Kimerevítik a leszakadt részt és a tetőt
És legvégül tárgyalja a dokumentum a leszakadt részt.

Ezt a részt is kimerevítik.

A tető megtartandó részét kimerevítik, és a folyosó fölött létrehoznak egy ideiglenes födést, ami véd az időjárás viszontagságaitól. A C1A szárny baleset miatt nyitott emeleti hálóját egy deszkafallal bezárják – zárul a szakvélemény.
Mi tovább követjük fejleményeket, és bármilyen információt, mely ezt segítheti, szívesen veszünk.
A cikk megjelenését a Journalismfund Europe támogatta: